-
产品中心
- Products · 产品中心 实验室整体方案规划设计 CNAS/CMA实验室认证 实验室装修装饰及洁净工程 实验室家具 恒温恒湿实验室工程 室外危化品存储柜/储能柜 通风柜系列
- 新闻资讯
- 成功案例
- 荣誉资质
- 服务支持
- 168幸运澳洲5历史开奖记录
实验室设计,实验室装修 ,实验室整体规划设计,实验室工程装修,化验室设计,化验室装修,化验室规划设计,化验室改造,实验室改造。
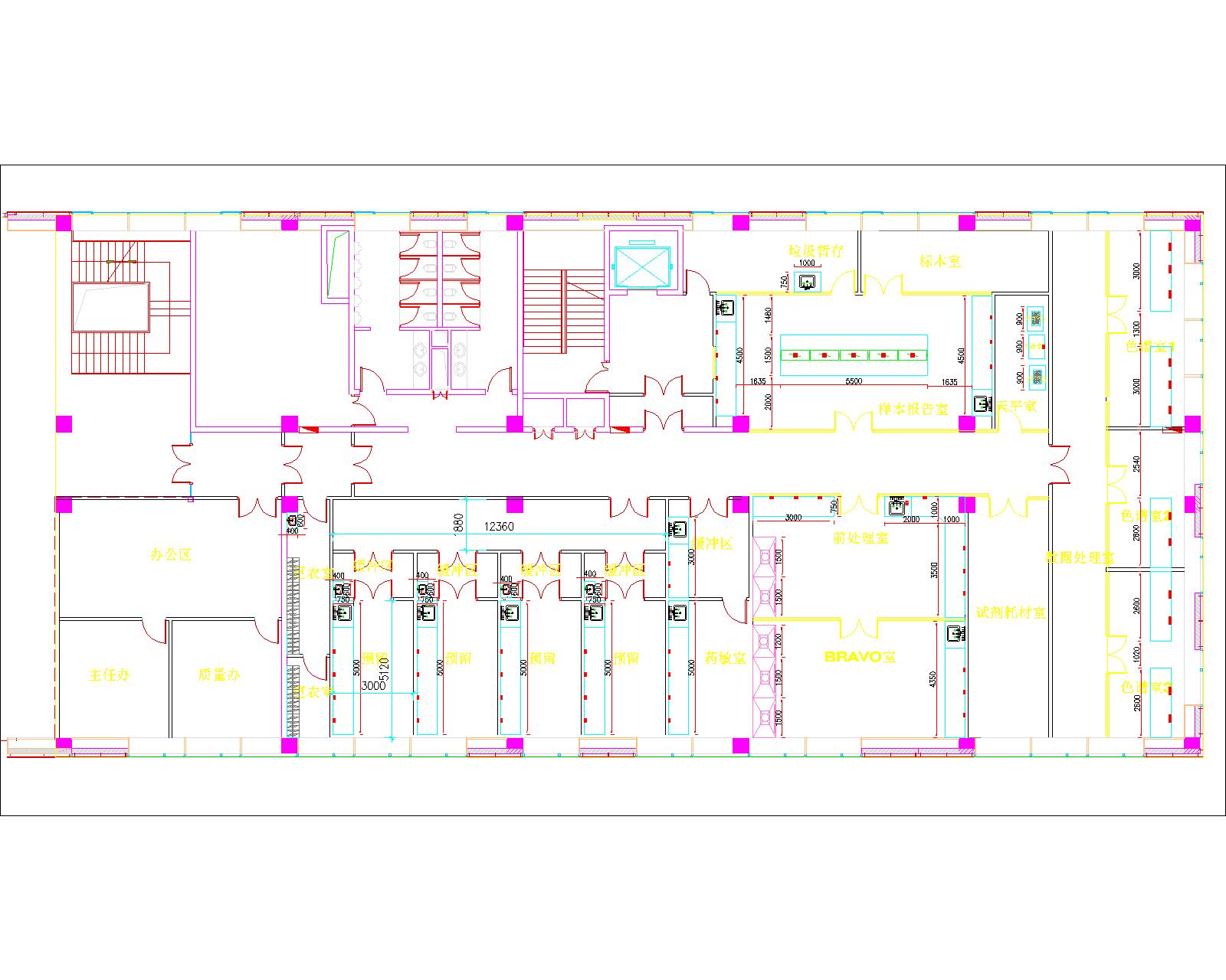
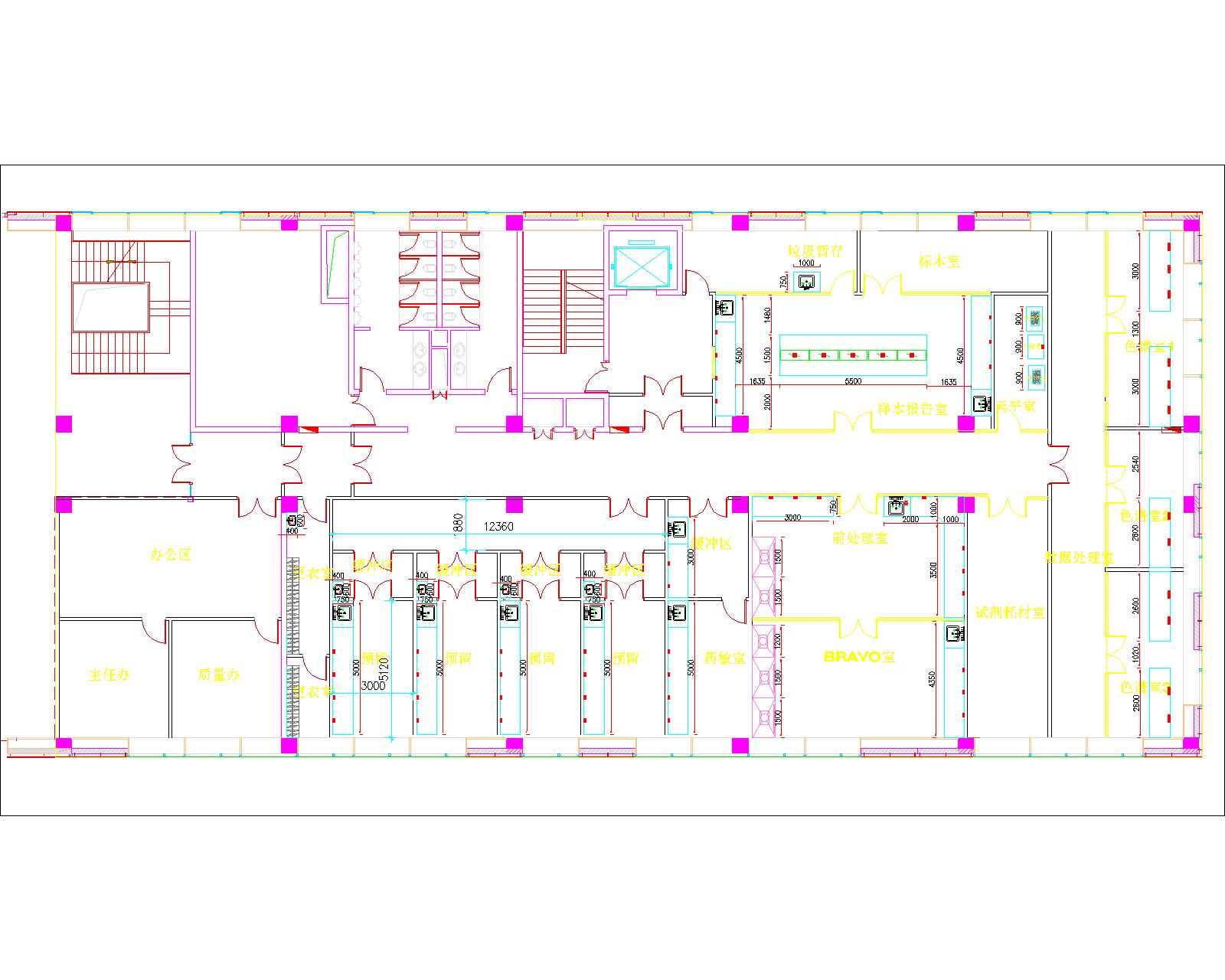
建立第三方医学检验实验室的基本标准
(国卫医发[2016]37号)颁布的同时(卫医政发[2009]119号)废止
一、派洛普带你简单了解医学检验实验室
1、医学检验实验室用在哪里?
人类疾病诊断、管理、预防、治疗或健康评估
2、医学检验实验室检验哪些?
A、临床检验:临床检验包含临床血液与体液检验、临床化学检验、临床免疫检验、临床微生物检验、临床细胞分子遗传学检验(DNA)
B、临床病理检查

三、仪器设备
1、基本设备:压力蒸汽灭菌器、离心机、冰箱、生物安全柜、加样器;医疗器械管理要求的设备有(血细胞分析仪、尿液分析仪、酶标仪、发光分析仪、生化类分析仪、核酸类分析仪、细菌培养和鉴定仪、质谱色谱仪)
2、病理常规设备:离心机、生物安全柜、加样器、消毒设备、标本柜、切片柜、蜡块柜、大体摄影装置、光学显微镜、数字切片系统(其中至少1台5人以上共览显微镜)
分子病理实验室设备(PCR室):荧光显微镜、分子杂交仪、核酸提取设备、低温离心机、
3、专业病理设备:蜡块包埋机、摊片机、石蜡切片机、密闭式全自动脱水机、HE全自动脱水机、全自动免疫组化染色机、自动液机/薄层细胞制片设备、冰冻切片机(可选),要有“国食药监械”的医疗器械注册号。
4、其他设备:电脑、信息系统(标本管理、报告管理)

四、管理制度
建立质量管理体系(规章制度、岗位职责):
管理制度至少包含(标本、设备、试剂、质量(前-中-后)、医疗文档、消防安全、患者登记、患者隐私保护、生物安全、危化品使用、信息的管理制度)
五、重点注意
1、医学检验实验室的建立必须符合《医疗机构管理条例》(中化人民共和图国务院令第149号)的条例。
2、医学检验实验室必须由市场以上的卫计委审批。
3、医学检验实验室必须为独立法人。
4、严格执行《医疗机构临床实验室管理办法》。
5、委托其他医学检验机构(试剂、耗品、辅助检查、消毒供应室)要签署医疗服务合作协议。
实验室设计,实验室装修 ,实验室整体规划设计,实验室工程装修,化验室设计,化验室装修,化验室规划设计,化验室改造,实验室改造。
168幸运澳洲5历史开奖记录专业提供第三方医学检验实验室设计,第三方医学检验实验室设计使用,第三方医学检验实验室设计操作等信息,欢迎来电咨询!
联系人:张经理 手机:15250059567
电话:0512-66317150 传真:0512-66317150
地 址:江苏省苏州市长江路98号
邮 箱:2791312677@qq.com 邮 编:215000
备案号:苏ICP备96271138号
管理登陆